概 述:
在钻井作业过程中,泥浆连续循环是必不可少的重要环节。泥浆在钻井过程中起着平衡井筒压力、携带岩屑、冷却钻头、巩固井壁及保护油气层的作用,人们称它是“钻井的血液”。它还能反映出井下的一些状况,如井喷或井漏,首先就反映在泥浆的总体积变化上。通过泥浆的井上和井下的循环,可以保证钻井的正常钻进。
泥浆是一种强导电率的粘稠液体,而且在连续循环的情况下其物理和化学特性会随时变化。目前,一般的液位仪不能准确检测出其液位,比如浮球式、超声波式、雷达式、射频导纳式、电阻式、电容式、相位跟踪式等。浮球式由于浮球挂料的不断增加,误差越来越大,装有导轨的很容易被卡住;超声波式由于泥浆的流动和搅拌,液面波纹对声波造成散射,检测精度不能保证;雷达式由于发射的是电磁波,所以不能对强导电介质进行准确检测;射频导纳式去除挂料的原理在强导电介质中不成立;电阻式和普通的电容式无法辨别是挂料还是真实料位;相位跟踪式对于强导电介质的挂料也会产生极大的偏差。
BY-D泥浆液位检测仪是针对强导电率的粘稠液体而研制成功的专用产品,主要用于检测钻井泥浆的液面高度及体积,具有精度高、抗干扰、免维护、不怕挂料等特点,能够准确、可靠的检测各参数,提前预报井喷和反映井漏,以便司钻及时采取措施避免严重事故的发生。
检测原理:
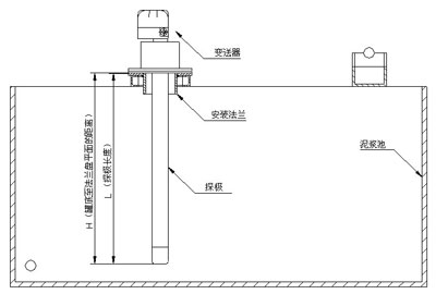
BY-D钻井泥浆液位检测仪采用叠层交替扫描技术,结合螺旋等电位法与叠层交错相匹配的感应单元进行检测,能有效的区分出强导电介质的挂料和真实料位。测量极采用刚性结构呈杆状,安装方便、操作简单,结构牢固、无机械部件故障少且使用寿命长,能够适应现场恶劣环境。外表面采用全聚四氟乙稀材料,可长期在酸碱盐等强腐蚀性溶液中使用,并且能够克服泥浆挂料、粘连、淋水等对检测的影响。微机的智能控制方便用户的使用,用户可以输入泥浆池的长、宽尺寸(mm),以便正确显示泥浆总体积(m3);用户可以输入对泥浆体积变化率的要求,以便及时声、光报警;可显示每个泥浆池的高度;带有背光的液晶显示屏幕可以昼夜为司钻清晰的显示所需要的泥浆总体积和每个泥浆池的高度。整套装置结构牢固,适合野外长期工作。
技术指标:
(1)电源:显示系统:220V±22VAC;变送器:220V±22VA或24V±2.4VDC
(2)环境温度:-40°C~+80 °C
(3)防护等级:IP66
(4)测量极类型:刚性结构
(5)测量极耐压:3.2MPa或定制
(6)介质温度:-40°C~+200 °C
(7)防爆标志:Exia [ia]ⅡCT4
(8)检测范围:液位 0m~4m;
(9)绝对误差:<5mm
(10)通讯接口:RS-485(MODBUS协议)或RS-232标准接口 4组4~20mA标准接口(可扩展至16组接口)
(11)法兰型号:标准法兰DN100或定制
(12)使用寿命:>3年,结构牢固无可动部件
电缆:四芯屏蔽电缆
安装:垂直插入式安装
维护:正确安装的钻井泥浆液位检测仪无需特别的维护
钻井泥浆液位检测仪安装示意图:

